オーシャンスイート
大人数での賑やかなリゾートパーティーをお望みの方にぴったりの会場。
海沿いの広々としたプールサイドまで自由なアイデアで演出いただけます。オープンエアで楽しむビュッフェや生演奏などもおすすめです。
| 面積 | 263㎡(内ホワイエ 88㎡) |
|---|---|
| 天井 | 3.3m |
| 付帯設備 | プールサイドテラス 280㎡ スクリーン2面 音響 照明(スポットライト4台) |
| 着席人数 | 160名 |
| 立食人数 | 180名 |
| スクール人数 | 80名 |
| シアター人数 | 180名 |
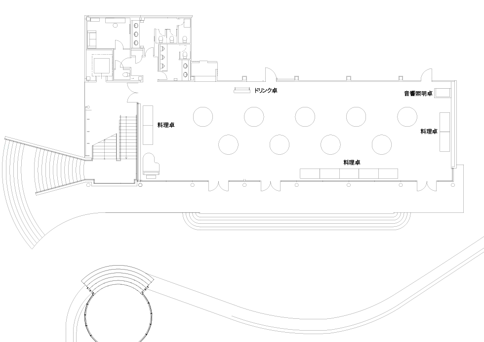
会場図面
リビエラ逗子マリーナ
イベントデスク
〒249-0008 神奈川県逗子市小坪5-23-16
TEL0467-23-0028
平日 11:00~18:00
土日祝 9:00~19:00
火曜・水曜定休(祝日を除く)








